Umbau Erweiterung Empfangsschuppen ehemaliger Güterbahnhof, Hamburg Altona
Fitnessstudio
Baujahr Bestand 1959 – Denkmalschutz
Planungsbeginn März 2016
Umbauzeitraum Sommer 2017 bis Sommer 2018
Leistungsphasen LPH 1-8
BGF 1.200 m2

Foto©Thomas Nutt






Planung
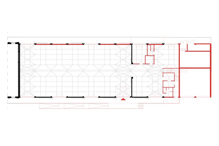
Die Planung sieht die Nutzungsänderung zum Fitnessstudio vor. Zunächst wird die 85 m lange Halle auf verbleibende 12 Felder zurückgebaut. Die letzten beiden Felder werden inkl. einer neuen Tiefgaragenzufahrt wieder aufgebaut und in Teilen denkmalgerecht rekonstruiert. Es verbleibt eine nutzbare Hallenfläche von ca. 950 qm mit bis zu 7 m lichter Höhe, die sich auf die etwas größere Südhalle und die kleinere Nordhalle verteilt. Da im Bereich der letzten zwei Felder der Nordhalle die Zu- und Ausfahrt zur Tiefgarage der neuen Querbühne erfolgt, wird der oberhalb liegende Bereich als Zwischengeschoss für Personalräume genutzt. Die Südhalle wird ohne weitere Einbauten als durchgängige Trainingsfläche hergerichtet. Die Nordhalle wird durch eine neue raumhohe Wand räumlich begrenzt. In diesem Hallenteil werden die Umkleidebereiche mit Sanitärräumen, einem Untersuchungsraum sowie Putzmittel- und Müllraum untergebracht. Der offene Hallencharakter bleibt auch hier erhalten, weshalb geschlossene Räume als Raum-im-Raum-System geplant werden und die Umkleidebereiche durch die Möblierung von Spinden, Duschtonnen und Sitzbänken räumlich begrenzt werden. In beiden Hallenteilen bleiben die Stahlkonstruktion des Dachtragwerks sowie die Deckung sichtbar. Die Verladerampe zum Hof dient der allgemeinen Nutzung und wird mit einer dementsprechenden Umwehrung versehen. Zusätzlich werden eine barrierefreie Rampe und eine Treppenanlage als massive Konstruktionen in Beton und rotem Ziegelmauerwerk vorgestellt.

Foto©Thomas Nutt

Foto©Thomas Nutt

Foto©Thomas Nutt

Foto©Thomas Nutt

Foto©Thomas Nutt


Foto©Thomas Nutt

Foto©Thomas Nutt

Foto©Thomas Nutt

Foto©Thomas Nutt


Foto©Thomas Nutt
Bestand
Das denkmalgeschützte Gesamtensemble des ehemaligen Güterbahnhofs Hamburg-Altona teilt sich in die West- und Osthallen auf. Der westliche Teil des Ensembles beginnt im Süden an der Harkortstraße mit dem dreigeschossigen Kopfgebäude (1955), setzt sich fort mit der etwa 100 m langen eingeschossigen Verkehrsgerätewerkstatt (vor 1900 bis 1960), dem etwa 80 m langen eingeschossigen Empfangsschuppen (1888), sowie der hier beplanten etwa 85 m langen eingeschossigen Erweiterung des Empfangsschuppens (1959). Westlich der Hallen befinden sich die Gleisanlagen, östlich der Hallen der Verladehof. Um beiden Transportebenen gerecht zu werden wurden die Hallen beidseitig durch Verladerampen ergänzt und mit Toranlagen ausgestattet.
Die Erweiterung des Empfangsschuppens (1959) wird im Zuge der Erweiterung des Güterbahnhofs, mit der Errichtung der Querbühne, auch der Empfangsschuppen nach Norden verlängert und an die Querbühne angeschlossen. Der neue eingeschossige Hallenanbau ist als Stahlbetonkonstruktion mit Backsteinausfachungen und flach geneigtem Satteldach konstruiert. Geschlossene Metallschiebetore befinden sich an den großen Öffnungen in jedem zweiten Fassadenfeld. Die Konstruktion unterliegt einem Raster von 5 Metern. Laderampen aus Beton mit roter Backsteinverblendung sind den Gebäudelängsseiten vorgelagert. Das flach geneigte Satteldach mit Betonhohldielendeckung wird von einer filigranen Stahlkonstruktion getragen. Durch die im Vergleich zu den benachbarten Hallen größere Höhe des Gebäudes liegt das Fensterband über dem auskragenden Betonvordach und ermöglicht so eine sehr gute Belichtung des Innenraums. Die zwei großen Hallenabschnitte im Innern werden von der offenen Dachkonstruktion bestimmt.



